BERRYS
The client needed a more functional and modern kitchen, as there was a lot of wasted space. We designed cabinets along all the walls, which allowed us to use every square inch and create ample storage space.
We replaced their daily dining nook with a multifunctional piece of furniture that can serve as a bench, table, or simply storage. We also used light materials to visually enlarge the space, incorporating a modern design with vintage touches.
We replaced their daily dining nook with a multifunctional piece of furniture that can serve as a bench, table, or simply storage. We also used light materials to visually enlarge the space, incorporating a modern design with vintage touches.
Photos of Existing Kitchen
Existing floor plan
Project Floor plan
Elevation A
Elevation B
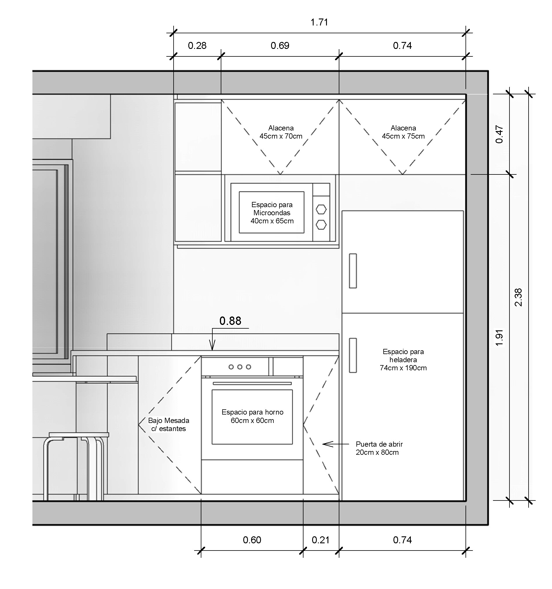
Elevation C
Elevation E
Casa Berrys, Martinez. Buenos Aires.